The cabin sits just back from the edge of the hill and has a walk out basement. The garage is is shown even though we have no plans to start it's construction. The exterior is wood grained vinyl and the chimney will be cultured stone. The roof pitch at the top was changed later make it easier to work on, so the upper roof is pitched off in a barn style

3D South view

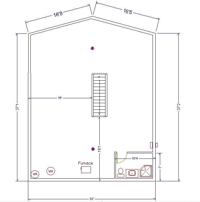
Basement Plan

Main Floor Plan

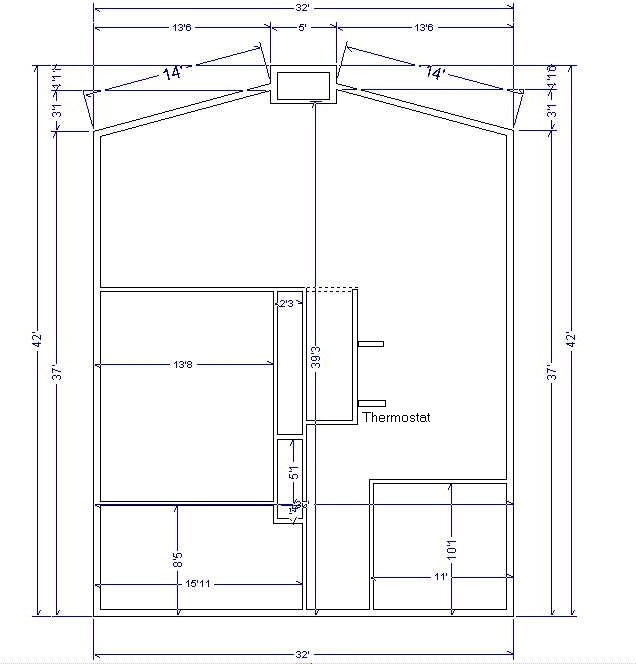
Upper Half-Story Plan